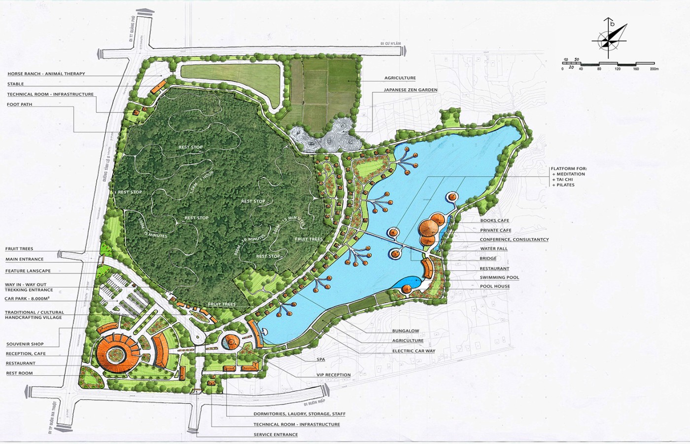
CU H’LAM HILL ECOTOURISM RESORT

 

- Investor: Dang Le  Co., Ltd
- Location: Daklak Province
- Site area: 517,000 m
- Service: Urban Planning 1/500 
- Design year: 2015

 

CU H’LAM HILL ECOTOURISM RESORT
CU H’LAM HILL ECOTOURISM RESORT
CU H’LAM HILL ECOTOURISM RESORT
CU H’LAM HILL ECOTOURISM RESORT
CU H’LAM HILL ECOTOURISM RESORT